Eladó új építésű ház - Kiskunlacháza

KAPCSOLAT
Hajas Zsuzsanna


+36 30 229

hajaszsuzsa.leeb@

Az időpont kérés naptár ikonja
IDŐPONTOT KÉREK
A visszahívás kérés telefon ikonja egy azt körbe ölelő nyíllal
VISSZAHÍVÁST KÉREK
Ajánlom egy ismerősömnek ikon
AJÁNLOM EGY ISMERŐSÖMNEK
Facebook megosztás ikon
MEGOSZTÁS

KAPCSOLATFELVÉTEL

Küldés

Az üzenetet sikeresen elküldtük!
Hiba történt!
INGATLAN ADATAI

Ingatlan jellege

családi ház

Belső terület

112 m²

Telek terület

456 m²

Tájolás

dél, kelet

Építési állapot

új

Építési mód

tégla

Szobák száma

4 szoba

Terasz

17 m²

Épület szintje

1.

Épült

2026

Ingatlan állapot

kívül: új
belül: új

Szigetelés

15 cm

Ablak szerkezete

3 rétegű thermoplan

Fűtés

hőszivattyús

Komfort

összkomfort

Parkolás

van fedetlen felszíni beálló

Közműállapot

csatorna: bekötve
gáz: utcában
villany: bekötve
víz: bekötve

Energetika

A+:

Az időpont kérés naptár ikonja
HTML
Az időpont kérés naptár ikonja
PDF
Eladó új építésű ház
Ingatlan azonosító:
8259_leebesfia

Pest megye, Kiskunlacháza, Dunaparti üdülő

Irányár

94.9 M Ft
(847.32 E Ft/㎡)

Szobák

4 szoba

Terület

112 m²

Telek terület

456 m²
INGATLAN LEÍRÁSA
Pár percre a Dunától, önálló ház, akár 3% Otthon Start hitelre!
Ha életérzést keres, akkor ez az ingatlan az Öné. Nyugalom, természet, vízpart egy helyen!
Kiskunlacházán, a Dunától 100 méterre, csendes, kulturált környezetben kínálok eladásra új építésű, nettó 112 nm,4 szobás, praktikus kialakítású, önálló családi házat, 456 nm telekkel. Víz, csatorna, villany van, gáz az utcában. A kivitelezést magas műszaki színvonal jellemzi.
A környék ideális horgászoknak, természetkedvelőknek, családoknak és nyaralónak is.
Az ingatlan kivitelezés alatt áll, a leendő tulajdonos számára még lehetőség nyílik bizonyos belső kialakítások, szaniterek kiválasztására, a kivitelezési szakasztól függően.
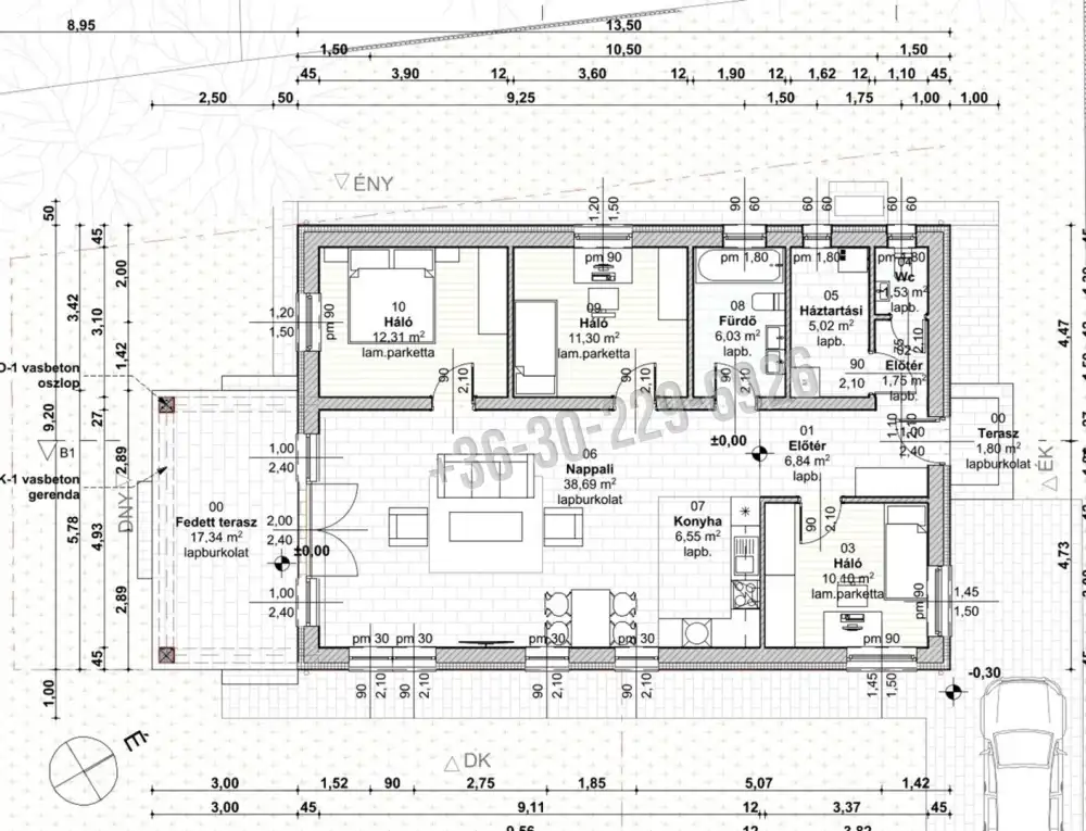
Elrendezése: előtér, 45 nm amerikai konyha-nappali, 3 szoba, fürdőszoba wc-vel, külön wc, háztartási helyiség, 17,5 nm fedett terasz.
Az épület belső kialakítása a kivitelezővel egyeztetve, még változtatható.
Műszaki adatokból ízelítő:
-Leier 30 cm tégla falazat
-15 cm-es grafitos homlokzati szigetelés
-3 rétegű műanyag nyílászárók, redőnnyel és szúnyoghálóval szereltek
-a fűtést-hűtést, és a meleg vizet: energiatakarékos hőszivattyú rendszer (levegős) biztosítja. Alacsony rezsivel számolhat a hőszivattyús rendszernek és az ELMŰ-nél megigényelhető H tarifájú KEDVEZMÉNYES áram díjszabás igénylésének köszönhetően, mellyel sokat spórolhat a fűtési szezon alatt!
Az épület 100%-ban padlófűtéssel rendelkezik, amely magasabb komfortfokozatot, költséghatékonyságot és jobb bútorozhatóságot biztosít.
Az ingatlan megépítése során modern, energiatakarékos megoldások kerülnek alkalmazásra, megfelelve a mai kor elvárásainak.
-3x16 Amper
-30 cm-es födémszigetelés, pakolható padlás,
-elektromos kapu kiállás,
-betoncserép
-alap kertrendezés
A festés fehér színben, hideg-meleg burkolatok 12.000,-Ft/nm-ig, ajtók, szaniterek meghatározott áron választhatók.
Egyénre szabott fizetési ütemezés a kivitelezővel egyeztetve!
Illetékmentesség, CSOK+, 3% támogatott hitelek felvehetők.
Teljes körű és díjmentes hitel ügyintézéssel áll rendelkezésére szakértő kollégánk, kérje személyre szabott ajánlatunkat!
Ez az ingatlan kiváló lehetőséget kínál azok számára, akik új, modern, alacsony rezsivel rendelkező otthont keresnek, és szeretnének részt venni a saját házuk kialakításában.
Képzeld el, hogy minden reggel madárcsicsergésre ébredsz, és pár perc sétával már a vízparton vagy. Most ez a lehetőség a tied lehet!
Részletes tervdokumentációt, műszaki leírást, alaprajzot a helyszínen tudok adni. Tervezett átadás 2026. ősz.
A projekt műszakilag és jogilag rendezett, a kivitelezéssel kapcsolatos további kérdéseivel forduljon hozzám bizalommal, visszahívom, ha hívását épp nem tudom fogadni.
Kulcsrakész ár: 94.900.000,-Ft

INGATLAN ADATAI

Ingatlan jellege
családi ház
Belső terület
112 m²
Telek terület
456 m²
Tájolás
dél, kelet
Építési állapot
új
Építési mód
tégla
Szobák száma
4 szoba
Terasz
17 m²
Épület szintje
1.
Épült
2026
Ingatlan állapot
kívül: új
belül: új
Szigetelés
15 cm
Ablak szerkezete
3 rétegű thermoplan
Fűtés
hőszivattyús
Komfort
összkomfort
Parkolás
van fedetlen felszíni beálló
Közműállapot
csatorna: bekötve
gáz: utcában
villany: bekötve
víz: bekötve
Energetika
A+:
TÉRKÉP

Pest megye, Kiskunlacháza, Dunaparti üdülő

Hitelkalkulátor


KAPCSOLAT
Hajas Zsuzsanna
Hajas Zsuzsanna


+36 30 229 6926

hajaszsuzsa.leeb@gmail.com

KAPCSOLAT
Hajas Zsuzsanna

+36 30 229

hajaszsuzsa.leeb@

Az időpont kérés naptár ikonja
IDŐPONTOT KÉREK
A visszahívás kérés telefon ikonja egy azt körbe ölelő nyíllal
VISSZAHÍVÁST KÉREK
Ajánlom egy ismerősömnek ikon
AJÁNLOM EGY ISMERŐSÖMNEK
Facebook megosztás ikon
MEGOSZTÁS

KAPCSOLATFELVÉTEL

Küldés

Az üzenetet sikeresen elküldtük!
Hiba történt!
INGATLAN ADATAI

Ingatlan jellege

családi ház

Belső terület

112 m²

Telek terület

456 m²

Tájolás

dél, kelet

Építési állapot

új

Építési mód

tégla

Szobák száma

4 szoba

Terasz

17 m²

Épület szintje

1.

Épült

2026

Ingatlan állapot

kívül: új
belül: új

Szigetelés

15 cm

Ablak szerkezete

3 rétegű thermoplan

Fűtés

hőszivattyús

Komfort

összkomfort

Parkolás

van fedetlen felszíni beálló

Közműállapot

csatorna: bekötve
gáz: utcában
villany: bekötve
víz: bekötve

Energetika

A+:

Az időpont kérés naptár ikonja
HTML
Az időpont kérés naptár ikonja
PDF
Pest megye - Kiskunlacháza
Pest megye - Kiskunlacháza
Pest megye - Kiskunlacháza
Pest megye - Kiskunlacháza
Pest megye - Kiskunlacháza
Pest megye - Kiskunlacháza
Pest megye - Kiskunlacháza
Pest megye - Kiskunlacháza
Pest megye - Kiskunlacháza
Pest megye - Kiskunlacháza
Pest megye - Kiskunlacháza
Pest megye - Kiskunlacháza
Pest megye - Kiskunlacháza