Eladó újszerű ikerház - Budapest, XX. kerület

KAPCSOLAT
Hajas Zsuzsanna


+36 30 229

hajaszsuzsa.leeb@

Az időpont kérés naptár ikonja
IDŐPONTOT KÉREK
A visszahívás kérés telefon ikonja egy azt körbe ölelő nyíllal
VISSZAHÍVÁST KÉREK
Ajánlom egy ismerősömnek ikon
AJÁNLOM EGY ISMERŐSÖMNEK
Facebook megosztás ikon
MEGOSZTÁS

KAPCSOLATFELVÉTEL

Küldés

Az üzenetet sikeresen elküldtük!
Hiba történt!
INGATLAN ADATAI

Ingatlan jellege

ikerház

Belső terület

39 m²

Telek terület

200 m²

Tájolás

kelet, nyugat

Építési állapot

újszerű

Építési mód

tégla

Szobák száma

2 szoba

Épület szintje

1.

Épült

kb. 1980

Ingatlan állapot

kívül: újszerű
belül: felújított

Klíma

van

Ablak szerkezete

3 rétegű thermoplan

Fűtés

hűtő-fűtő klíma

Komfort

összkomfort

Parkolás

van fedetlen felszíni beálló

Közműállapot

csatorna: bekötve
gáz: utcában
villany: bekötve
víz: bekötve

Energetika

nincs megadva

Az időpont kérés naptár ikonja
HTML
Az időpont kérés naptár ikonja
PDF
Eladó újszerű ikerház
Ingatlan azonosító:
8267_leebesfia

Budapest, XX. kerület, Gubacsipuszta

Irányár

58.8 M Ft
(1.51 M Ft/㎡)

Szobák

2 szoba

Terület

39 m²

Telek terület

200 m²
INGATLAN LEÍRÁSA
Pesterzsébet legjobb részén 38 nm ikerházi lakás eladó! 3% Otthon Start Hitelre is!
Pesterzsébet legkedveltebb részén, csendes, rendezett környéken eladó egy téglaépítésű, teljes körűen felújított 2 lakásos ikerház 1 db 38 nm utcafronti, kertkapcsolatos lakása. A lakáshoz 115 nm telekrész tartozik. A lakások külön gyalogos és külön gépkocsi beállóval közelíthetőek meg, valamint külön mérőórákkal rendelkeznek.
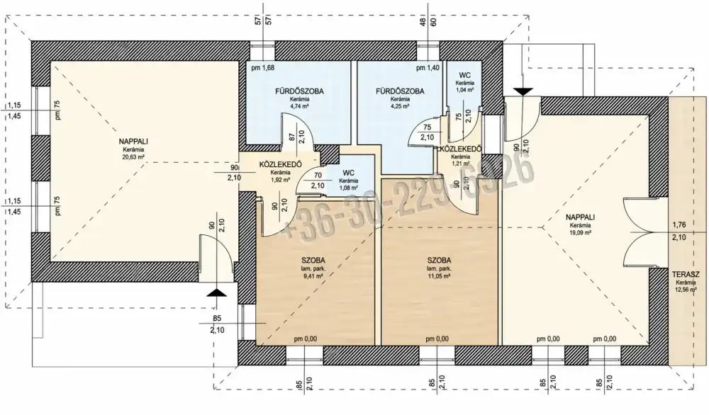
Elrendezés: előtér, amerikai konyha-nappali, szoba, fürdőszoba, külön wc.
Főbb jellemzők:
-38 nm alapterület, saját, külön használatú telekrész,
-Teljes körű felújítás (villany- és vízvezetékek, burkolatok, nyílászárók, komplett tető csere, homlokzati szigetelés), festés fehér színben, hideg burkolat 7.000,-Ft-ig, meleg burkolat 6.000,-Ft értékig, szaniterek, ajtók, meghatározott áron választhatók,
-hűtő-fűtő klíma, elektromos infrapanel,
-meleg vizet Ariston elektromos villany bojler biztosítja,
-Modern, letisztult belső tér, alacsony rezsiköltség,
Kiváló infrastruktúra jellemzi a környéket – a közelben megtalálható minden, ami a mindennapi élethez szükséges: boltok, iskola, óvoda, tömegközlekedés. A belváros könnyen és gyorsan elérhető.
Az ingatlant kifejezetten ajánlom egyedülállóknak, pároknak vagy akár befektetésnek is, mivel a tökéletes elhelyezkedésének és alacsony rezsijének köszönhetően gyorsan kiadható!
Hitelezhető, 3% Otthon Start felvehető rá!
Irány ár: 58.800.000,-Ft

INGATLAN ADATAI

Ingatlan jellege
ikerház
Belső terület
39 m²
Telek terület
200 m²
Tájolás
kelet, nyugat
Építési állapot
újszerű
Építési mód
tégla
Szobák száma
2 szoba
Épület szintje
1.
Épült
kb. 1980
Ingatlan állapot
kívül: újszerű
belül: felújított
Klíma
van
Ablak szerkezete
3 rétegű thermoplan
Fűtés
hűtő-fűtő klíma
Komfort
összkomfort
Parkolás
van fedetlen felszíni beálló
Közműállapot
csatorna: bekötve
gáz: utcában
villany: bekötve
víz: bekötve
Energetika
nincs megadva
TÉRKÉP

Budapest, XX. kerület, Gubacsipuszta

Hitelkalkulátor


KAPCSOLAT
Hajas Zsuzsanna
Hajas Zsuzsanna


+36 30 229 6926

hajaszsuzsa.leeb@gmail.com

KAPCSOLAT
Hajas Zsuzsanna

+36 30 229

hajaszsuzsa.leeb@

Az időpont kérés naptár ikonja
IDŐPONTOT KÉREK
A visszahívás kérés telefon ikonja egy azt körbe ölelő nyíllal
VISSZAHÍVÁST KÉREK
Ajánlom egy ismerősömnek ikon
AJÁNLOM EGY ISMERŐSÖMNEK
Facebook megosztás ikon
MEGOSZTÁS

KAPCSOLATFELVÉTEL

Küldés

Az üzenetet sikeresen elküldtük!
Hiba történt!
INGATLAN ADATAI

Ingatlan jellege

ikerház

Belső terület

39 m²

Telek terület

200 m²

Tájolás

kelet, nyugat

Építési állapot

újszerű

Építési mód

tégla

Szobák száma

2 szoba

Épület szintje

1.

Épült

kb. 1980

Ingatlan állapot

kívül: újszerű
belül: felújított

Klíma

van

Ablak szerkezete

3 rétegű thermoplan

Fűtés

hűtő-fűtő klíma

Komfort

összkomfort

Parkolás

van fedetlen felszíni beálló

Közműállapot

csatorna: bekötve
gáz: utcában
villany: bekötve
víz: bekötve

Energetika

nincs megadva

Az időpont kérés naptár ikonja
HTML
Az időpont kérés naptár ikonja
PDF
Budapest, XX. kerület - Gubacsipuszta
Budapest, XX. kerület - Gubacsipuszta
Budapest, XX. kerület - Gubacsipuszta
Budapest, XX. kerület - Gubacsipuszta
Budapest, XX. kerület - Gubacsipuszta
Budapest, XX. kerület - Gubacsipuszta
Budapest, XX. kerület - Gubacsipuszta
Budapest, XX. kerület - Gubacsipuszta
Budapest, XX. kerület - Gubacsipuszta
Budapest, XX. kerület - Gubacsipuszta
Budapest, XX. kerület - Gubacsipuszta